Ijraset Journal For Research in Applied Science and Engineering Technology
Authors: Londhe Rikin Deepak, Panpatil Aniket Mukunda, Dabhade Sachin Bapu, Borse Pooja Vijay, Prof. Puneet Jain
DOI Link: https://doi.org/10.22214/ijraset.2023.53211
Certificate: View Certificate
Currently, environmental pollution has become one of the most important issues faced by human beings. It has increased more rapidly in the past few years and reached alarming levels in terms of its toxic effects on living beings. Although pollution due to tanneries in India dates back 100 years, it received much attention only in the recent past. Toxic heavy metals are considered one of the strong pollutants that have a direct effect on humans and animals. Industrial wastewater containing heavy metals like lead, copper, cadmium, chromium, etc. can contaminate groundwater resources and thus lead to serious groundwater pollution problems. The present study is focused on the removal of hexavalent chromium from an aqueous solution using an eco-friendly adsorbent, activated carbon prepared from the pods of the Delonix regime. The various parameters such as concentration, Activation time, and heavy metals (chromium is such metal which is to be found in the aqueous system in ionic form) are to be used. Adsorption has been advocated as the most promising among the currently known methods for wastewater treatment, especially for the removal of metals like copper, lead, chromium, and nickel.
I. INTRODUCTION
The water of high quality is essential for human existence and agricultural, industrial, domestic, and commercial use and all these activities are also responsible for polluting the water. The majority of the industries are water-based and a considerable volume of wastewater originating from these is generally discharged into water sources either untreated or inadequately treated resulting in water pollution. A study conducted by the Centre for Science and Environment, New Delhi, India, has suggested that over 70% of available water in India is polluted (C.S.E. Survey, 1982). The contamination of water due to toxic heavy metals through the discharge of industrial wastewater is a global environmental problem. Recently much importance has been given to removal techniques and developments of new processes for heavy removal from wastewater.
There is a large number of industries that discharge chromium-containing waste, namely tanning, electroplating, textile cement and asbestos, refractories, cooling towers of thermal power stations, and many other industries.
Chromium has been considered one of the toxic pollutants because of its carcinogenic characteristics, it has become a serious health problem. Extensive use of chromium results in large quantities of chromium-containing effluents which need sufficient treatments. The infection of water because of poisonous heavy metals via the discharge of business wastewater is a global environmental problem. The heavy metals reach the water in our bodies through many business activities. From the heavy metals chromium is such metallic that is to be discovered in aqueous gadgets as both ionic bureaucracies i.e., Trivalent and Hexavalent chromium. They are not easily and widely available, therefore agricultural products and byproducts like crushed coconut shell sawdust, and peat mass have been employed, as these adsorbents have a distinct advantage over activated carbon because of their low cost and easy availability [10]. The present study is focused on the removal of hexavalent chromium from an aqueous solution using an eco-friendly adsorbent-activated carbon prepared from the pods of Delonix regia
A. Need For Study
Chromium (Cr) is one of these heavy metals Cr (VI) compounds are strong oxidizing agents and are highly corrosive. Strong exposure to Cr (VI) causes cancer in the digestive system and may cause epigastric pain, nausea, and vomiting, severe diarrhea. Thus it is essential to remove Cr (VI) from wastewater to avoid the hazardous effect. Industrial wastewater containing lead, copper, cadmium, chromium, etc. can contaminate groundwater assets and thus lead to extreme floor water pollutants issues. Cr (VI) compounds are robust oxidizing sellers and are enormously corrosive. Strong publicity of Cr (VI) reasons most cancers in the digestive system and may purpose epigastric ache, nausea, vomiting, severe diarrhea
B. Objectives
To arrive at the low-cost adsorbent for removal of heavy metal i.e. hexavalent chromium.To study the physical and chemical properties of the prepared activated carbon. To determine the efficiency of the prepared activated carbon. Economical way to remove heavy metals from industrial wastewater
II. LITERATURE REVIEW
III. METHODOLOGY
A. Selection of Material
To evaluate a feasible and economical low-cost treatment. To remove the heavy metal Cr (VI) present in a synthetic sample by using abundant available Pods of Gulmohar. By preparing activated carbon from this Gulmohar Pods (Delonix regia) as an adsorbent.
Properties of Gulmohar (Delonix regia)
Botanical classification [8]

B. Preparation Of Activated Carbon
Preparation of activated carbon Pods of Delonix regia was collected from Avinashilingam Deemed University for Women campus, Coimbatore. The pods were cut into small pieces, dried in sunlight for 5 days, and further dried in a hot air oven at 60°C for 24 hours. The completely dried material was powdered well and chemically activated by treating it with concentrated sulphuric acid with constant stirring and kept for 24 hours. The carbonized material obtained was washed with water several times to remove excess acid and dried at 105-110°C for 24 hours. The adsorbent thus obtained was ground well and sieved through a 250 mesh and kept in an airtight container for further use
C. Botanical Description
The flowers of Delonix regia are large, with four spreading scarlet or orange-red petals up to 8 cm long, and a fifth upright petal called the standard, which is slightly larger and spotted with yellow and white. They appear in corymbs along and at the ends of branches. The naturally occurring variety) has yellow flowers. The pods are green and flaccid when young and turn dark brown and woody. They can be up to 60 cm long and 5cm wide. The Pods are small, weighing around 0.4 g on average. The compound leaves have a feathery appearance and are a characteristic light, bright green, and are doubly pinnate. Each leaf is 30–50 cm long with 20 to 40 pairs of primary leaflets or pinnate, each divided into 10–20 pairs of secondary leaflets or pinnules.
D. Characteristics of GULMOHAR
Gulmohar is a flamboyant tree in flower some say the world's most colourful tree. For several weeks in spring and summer, it is covered with exuberant clusters of flame-red flowers, 45 in across. Even up close the individual flowers are striking they have four spoon-shaped spreading scarlet or orange-red petals about 3 in long, and one upright slightly larger petal (the standard) which is marked with yellow and white. The delicate, fernlike leaves are composed of small individual leaflets, which fold up at the onset of dusk. Gulmohar gets 3040 ft tall, but its elegant wide-spreading umbrellalike canopy can be wider than its height.
E. Figures Of Delonix REGIA


F. Methods of Preparation of activated carbon
For the removal of hexavalent chromium from an aqueous solution adsorption technique was employed using activated carbon prepared from locally available Pods of Gulmohar (Delonix regia)
There are two methods to prepare activated carbon namely Physical Activation
Chemical Activation
In the present study, both physical and chemical activation are employed to prepare active carbon powdered Pods of Gulmohar (Delonix regia)
G. Physical Activation
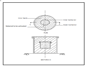
The Pods of Gulmohar (Delonix regia), were broken into pieces and churned into powder form, washed in distilled water 2 to 3 times. The powder was then oven dried at 105±5oC for 24 hours. The oven-dried powder was filled in a small container in three layers, by compacting each layer without any air space to avoid the loss in weight of the powder otherwise it would result in the burning of the material directly, leaving behind only the ash. The small container was then placed into a bigger container, such that, sand surrounded the small container. The the lid of the bigger container was tightly fitted. Then the setup was kept in a muffle furnace at the temperature of 650oC. After attaining the required temperature, the furnace was allowed to cool for about 10 hours before the container was taken out.

H. Instruments
I. Solutions
Synthetic hexavalent chromium solution was prepared by dissolving 282.8 mg potassium dichromate in one liter of deionized and distilled water, such that each ml of solution contains 100µg of chromium [5].
2. Titration Curve for Acidification of Chromium (VI) Solution
5 ml of chromium solution and 45 ml distilled water were taken in a beaker. 0.1 NH2SO4 was taken in the burette and slowly added, the resulting PH was wasted using a PH meter. The titration curve can be obtained by plotting pH versus 0.1 N H2SO4 added
IV. RESULTS AND DISCUSSIONS
The chapter deals with the study efficiency of prepared carbon for removing hexavalent chromium, the Effect of contact time, the Effect of carbon dosage, and the Effect of pH.
A. Effect of Particles Size on Adsorption
Adsorption is a surface phenomenon; as such the extent of adsorption is proportional to a specific surface area. Hence the amount of adsorption per unit weight of solid adsorbent is greater in the more finely divided and more porous material. The rate of adsorption depends mainly on particle size. Finer the particle, the higher the rate of adsorption, and vice versa. However, there is a limitation for particle size, if the particle size is less than 175 µ, Each particle having a small surface area acts as an individual entity for the removal of adsorbate from aqueous solution. Hence in the present study experiments were carried out using an effective particle size of 300µ for removal of chromium (VI).
B. Effect of Contact Time
Contact time has a great influence on the adsorption process. The effect of contact time on the removal of chromium (VI) for a synthetic sample at pH 2±0.02 using physical carbon of Pods of Gulmohar (Delonix regia)in Figure No. 4.1and model values are shown in the Figure No. 4.1 from it is observed that contact time differs for different carbonsMi.e. for physically activated carbons. It is further authenticated by studying the pore diffusion of carbons. As time passes, pore diffusion increases, Hence adsorption also increases.
C. Effect of Adsorbent Dosage
Adsorption is a process in which there is a continuous transfer of a solute from solution to adsorbent until the residual concentration of solution maintains an equilibrium with that adsorbed by the surface of the adsorbent at constant contact time. The effect of adsorbent dosage is studied and a graph of the percentage of chromium removal versus dosage is plotted as shown in Figure No. 4.2. From the graph it is observed that, as the doses of carbon increases, the amount of residual chromium (VI) decreases sharply and attains minimum. The point where maximum removal is attained is taken as the optimum dosage. After this much change in adsorption is observed even after increasing the amount of carbon. The optimum dosage for all prepared carbon is listed in 4.2.
D. Effect of pH On Hexavalent Chromium Removal
The pH of a solution has an influence on the extent of adsorption removal efficiency of chromium (VI) by preparing activated carbon at different pH values are shown in 4.3 and
4.3. From the shown it is observed that chromium (VI) is removed more effectively in the acidic range. As pH increases, the removal efficiency decreases appreciably. This is due to the possibility of precipitation of carbon surface by nucleation.
2????+ + 2????????????????− ↔ 2????2????????????4 ↔ 2????2???? + ????????2????−2 + 2????+ ↔ 2????????????3 + ????2????
E. Batch Sorption Experiment
In batch sorption, a predetermined amount of adsorbent is mixed with the sample, stirred using a magnetic stirrer for a given contact time and subsequently separated by filtration. The powdered adsorbent is more sui for the batch-type contact process.
F. Selection of Optimum Contact Time
The adsorption is strongly influenced by the contact time. For the study of the effect of contact time, 100 ml of 10 mg/L hexavalent chromium solution of PH2±0.02 was mixed with 100mg of activated carbon and stirred at different contact times. Then the filtrate was analyzed for chromium (VI) concentration using a spectrophotometer.
G. Determination of Optimum Dosage Adsorbent
To determine the optimum dosage of activated carbon, it was added to a conical flask in different dosages containing a known concentration of chromium (VI) solution (10 mg/ L) and adjusted to pH 2.0. The solution in the conical flask was subjected to stirring for optimum contact time, filtered, and analyzed for residual chromium concentration.
The dosage which gives minimum residual concentration is chosen as the optimum dosage.
H. Effect of pH on Hexavalent Chromium Removal
The extent of adsorption is strongly influenced by the pH at which adsorption is carried out. The effect of pH on hexavalent chromium adsorption was studied by performing equilibrium adsorption tests at different pH. The initial pH of the solution was adjusted by using 0.1 N H2SO4. The pH at which maximum chromium (VI) removal forms is called optimum pH.
I. Sorption Kinetics
The beakers containing 100 ml of hexavalent chromium solutions of concentration 10 mg/L (adjusted to pH 2.0± 0.02) and a known amount of optimum prepared activated carbon from Pods of Gulmohar (Delonix regia) were stirred. The samples were withdrawn at different intervals and filtered supernatant was analyzed.
Based on the present study, the following conclusion can be drawn. The raw material of Pods of Gulmohar (Delonix regia) has low efficiency in Cr (VI) removal. Pods of Gulmohar (Delonix regia) can be effectively used for the preparation of activated carbon. Column study may be considered with this adsorbent. The adsorption of Cr (VI) is pH dependent. The removal efficiency of the adsorbent increased with a decrease in the pH value of the solution. Maximum adsorption takes place at pH=2. From the kinetic studies, it is observed that the adsorption of Cr (VI) is very rapid up to 45 minutes and decreases while approaching equilibrium. At an optimum time of 50 minutes, the optimum dosage of 100 mg, and optimum pH =2 physically. Activated carbon made from Pods of Gulmohar (Delonix regia) has shown a good Cr(VI) removal efficiency of 65%. The pods of Gulmohar (Delonix regia) are good sources for the preparation of low-cost adsorbent. Seeds of Gulmohart Royal Poinancios) is a good source for the preparation of low-cost adsorbent and require less time and energy for the production of highly porous nontoxic AC from Gulmohar fruit shells which is a throw-away waste thus converting it into a highly useful product
[1] Awoyale, A.A., ElokaEboka, A.C. and Odubiyi, O.A \"Production and experimental efficiency of activated [2] carbon from local waste bamboo for wastewater treatment\" international journal of Engineering and applied sciences.” Vol.3.2(2013) [3] KhairiraihannaJohari,rasikinSaman, ShiowTien Song, CheuSiew Chin, Helen Kong, Hanapi Mat “Adsorption enhancement of elemental mercury by various surface Modified coconut Husk as eco-friendly low-cost adsorbents.\" International Biodeterioration and Biodegradation 109 (2016) 4552 [4] Dr.U.SENTHILNATHAN \"Adsorption kinetics on the removal of chromium from wastewater using acacia nilotica wood-based activated carbon\" International Journal of Advanced Research. Vol.3 Issue 5,(2015) 580587 [5] Mona Karnib, Ahmed Kabbni, HanafyHolail, ZakiaOlama “Heavy Metals Removal Using Activated Carbon Composite” EnergyProcedia 20 (2014) 113120. [6] Puneet Jain, Auwal Alhassan Musa, Lasmar Garba, 2020, Application of Nanomaterials in Transportation Engineering, INTERNATIONAL JOURNAL OF ENGINEERING RESEARCH & [7] TECHNOLOGY (IJERT) Volume 09, Issue 02 (February 2020).Assessment of Safety Management for Public Construction Sites in Nigeria. Crossref DOI: https://doi.org/10.35940/jitee A7105 119119, Published Online: 2019-11-30 Update policy: https://doi.org/10.35940/belesp.crossmarkpolicy, Authors Jain*, Er Puneet, Garba, Lasmar. [8] Puneet Jain2, Murala Giridhar Sai1, May-June 2020, Assessment of Fiber Reinforced Concrete (FRC) with Industrial Wastage Material for Rigid Pavements, TEST Management Journal, Article Info Volume 83 Page Number: 13446-13451Publication Issue: May-June 20. [9] Jain, P. (2017). Partial Replacement of Fine Aggregate with Glass Using DIC Technique with Waste Materials for Investigation of Crack Propagation. International Journal of Engineering Research and Application, 7(11), 5. https://doi.org/DOI: 10.9790/9622-0711056165 [10] Jain, P. (2017). Determining Mix Proportion For The Marble Slurry Powder Recovered From Marble Slurry Replacing Fine Aggregate Of Concrete Used In Residential Construction Project In Udaipur, India, JERA, 710), 30-35. https://doi.org/DOI: 10.9790/9622- 0710053035
Copyright © 2023 Londhe Rikin Deepak, Panpatil Aniket Mukunda, Dabhade Sachin Bapu, Borse Pooja Vijay, Prof. Puneet Jain. This is an open access article distributed under the Creative Commons Attribution License, which permits unrestricted use, distribution, and reproduction in any medium, provided the original work is properly cited.
Paper Id : IJRASET53211
Publish Date : 2023-05-28
ISSN : 2321-9653
Publisher Name : IJRASET
DOI Link : Click Here
Submit Paper Online
